Home
About
Resume
Projects
Contact
Project information
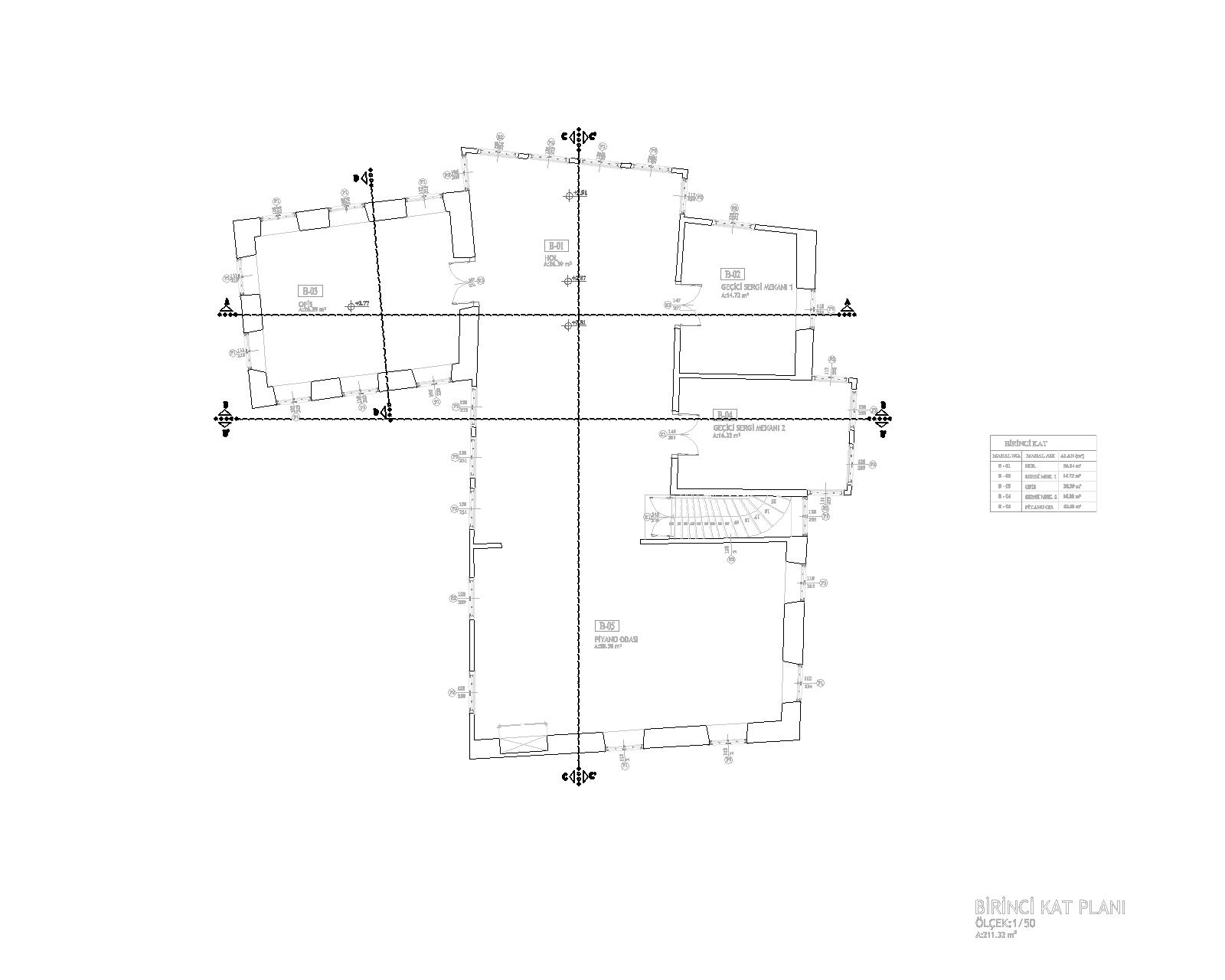
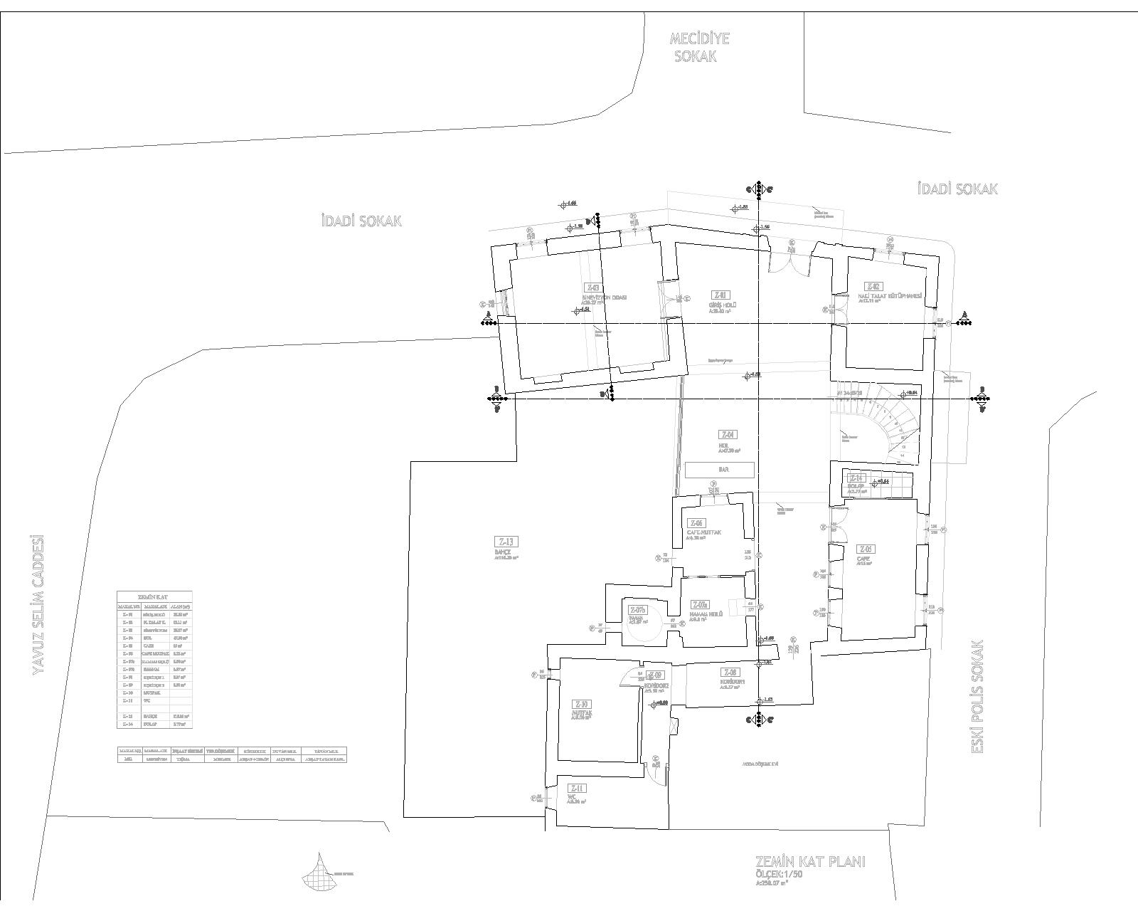
COURTYARD DESIGN OF NACI TALAT VAKFI
Designing and arranging the backyard of the building for social gatherings and ceremonies.