Home
About
Resume
Projects
Contact
Project information
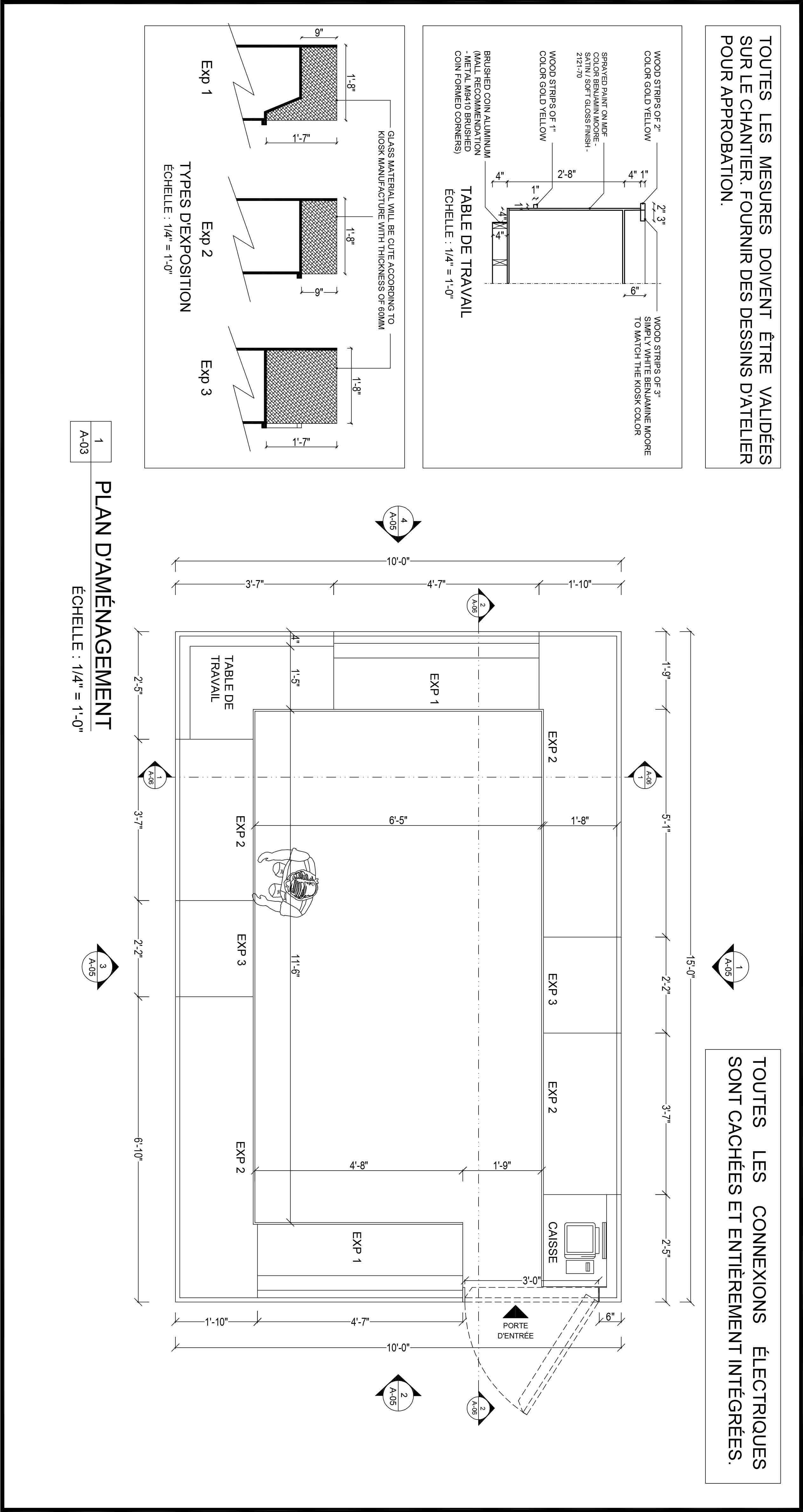
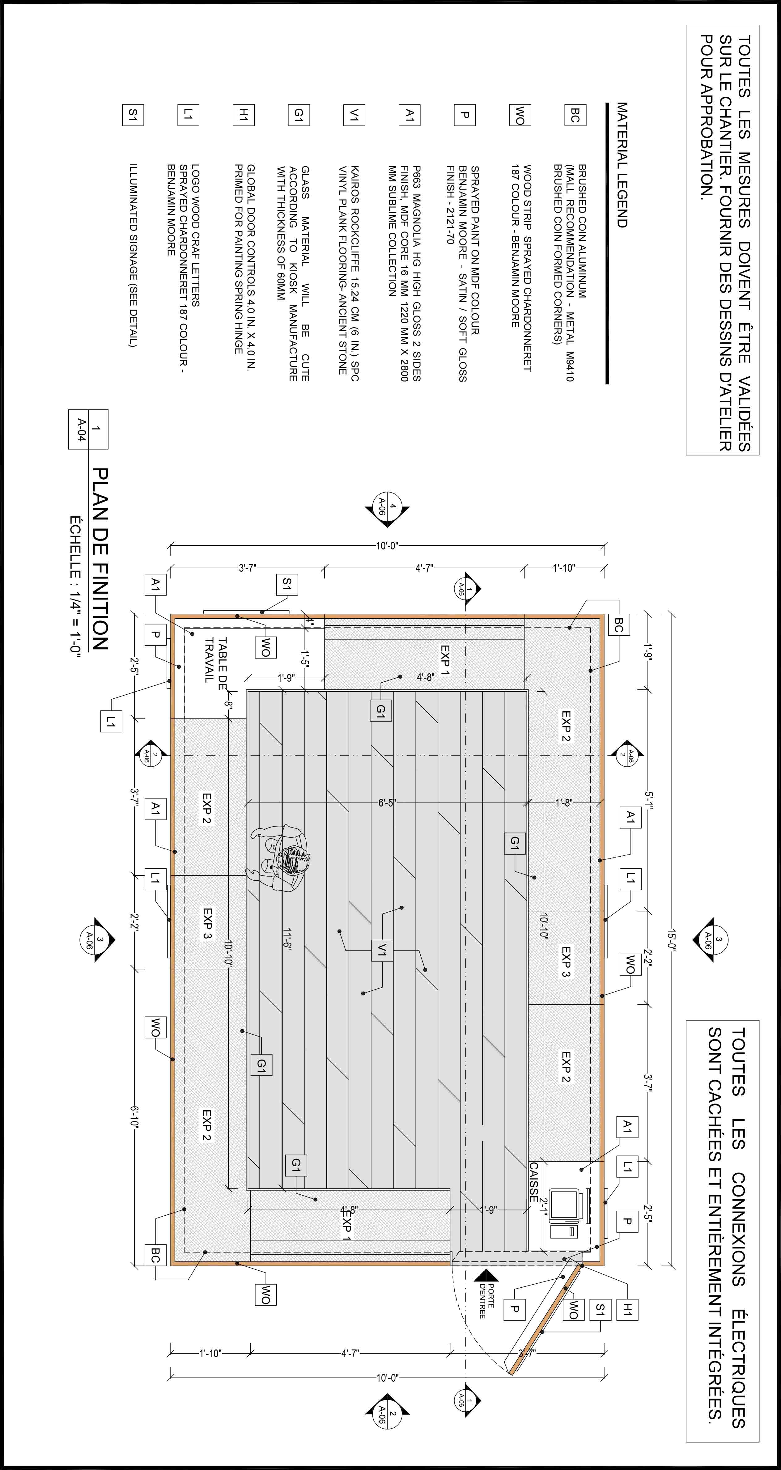
JOULYA KIOSQUE COMMERCIAL - CARREFOUR, LAVAL