Home
About
Resume
Projects
Contact
Project information
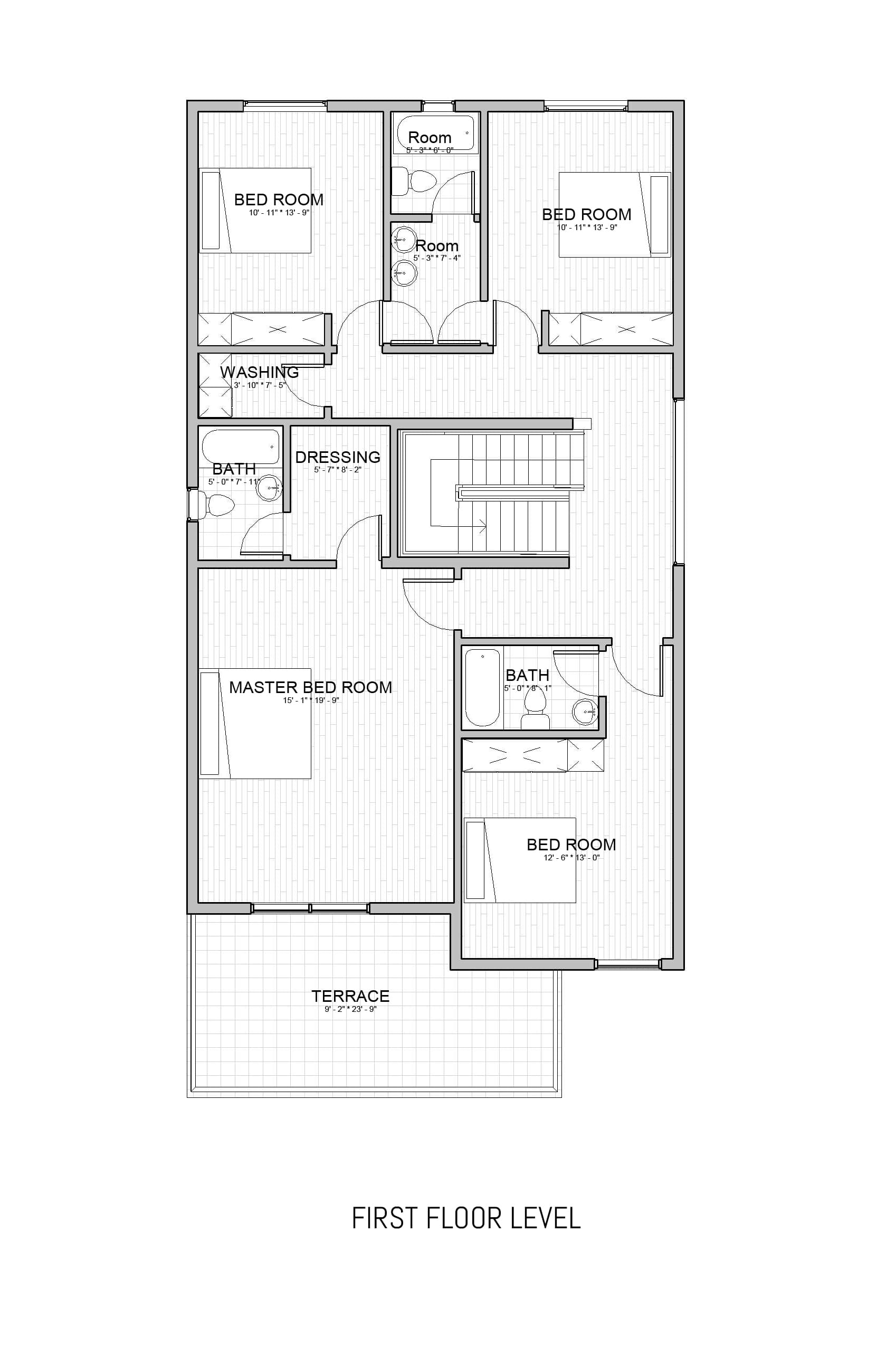
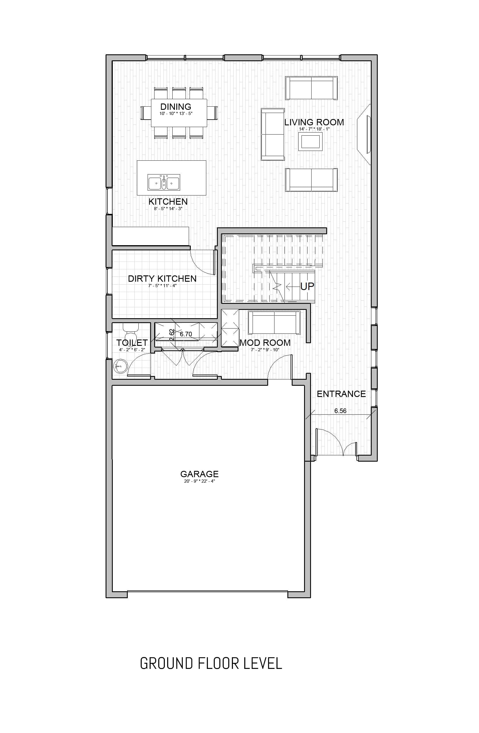
WHITEROCK SUBDIVISION LONDON ONTARIO SAMPLE1