Home
About
Resume
Projects
Contact
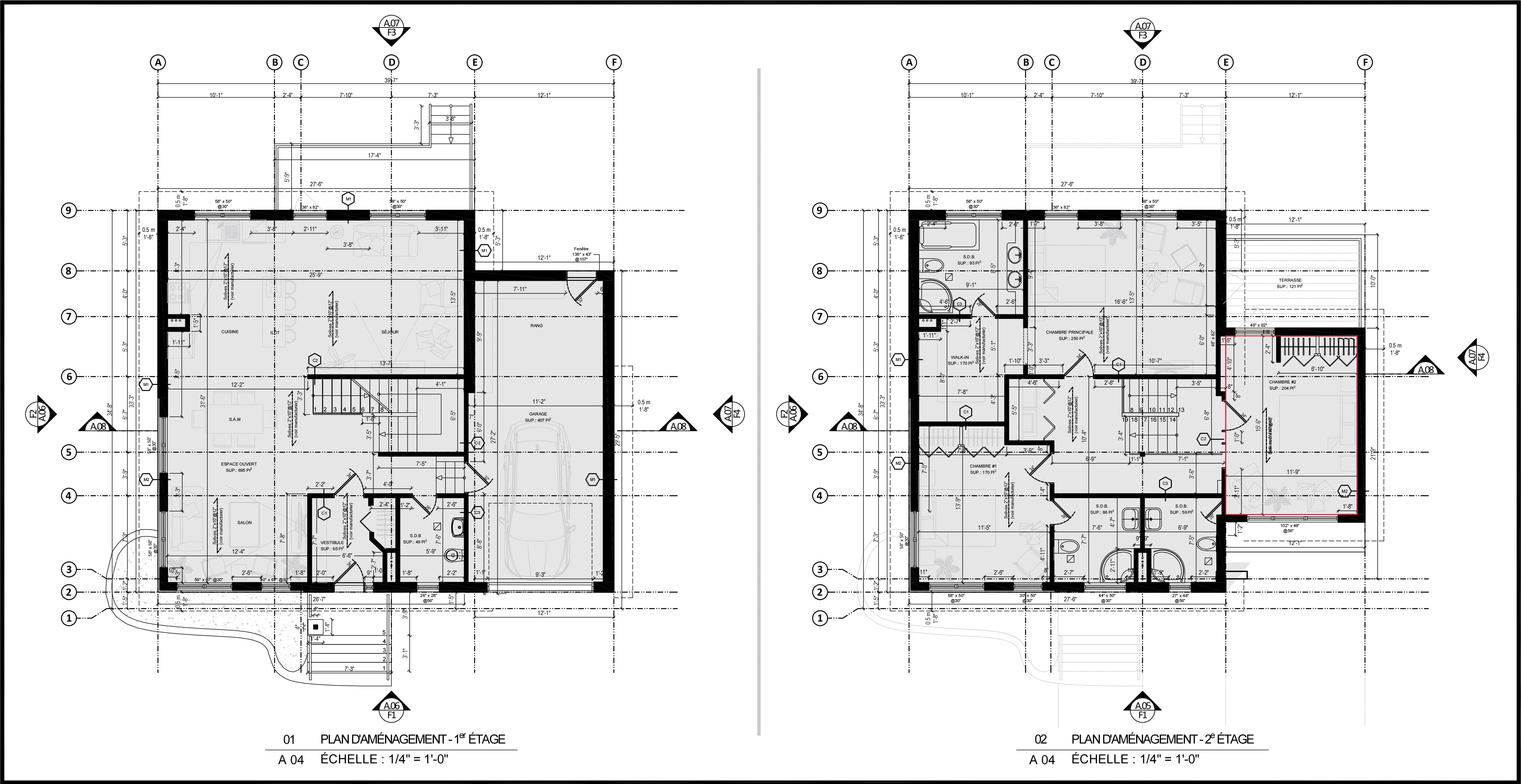
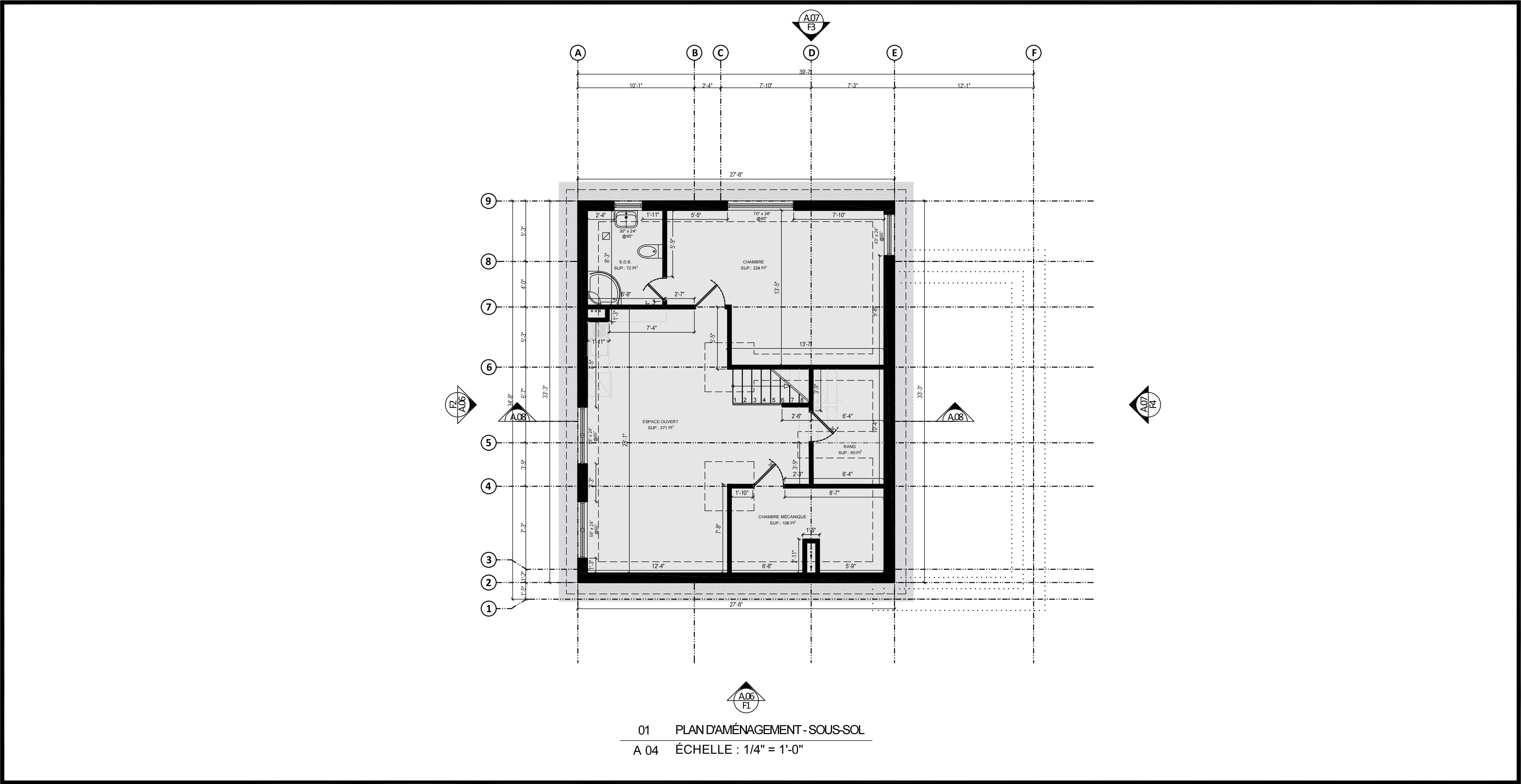
Project information
270 BOULEVARD PINE BEACH, DORVAL, QC H9S 2V7