Home
About
Resume
Projects
Contact
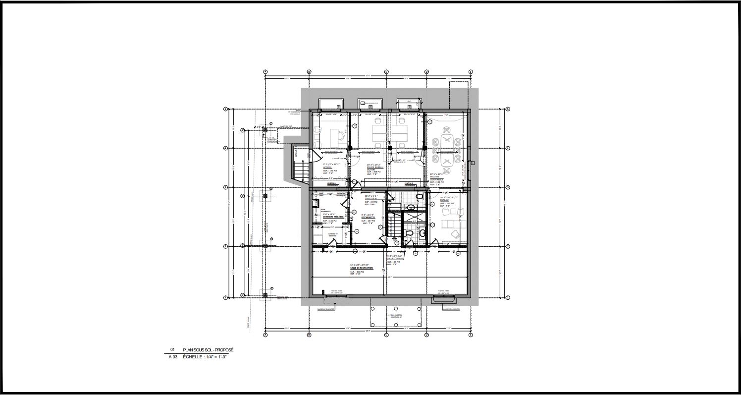
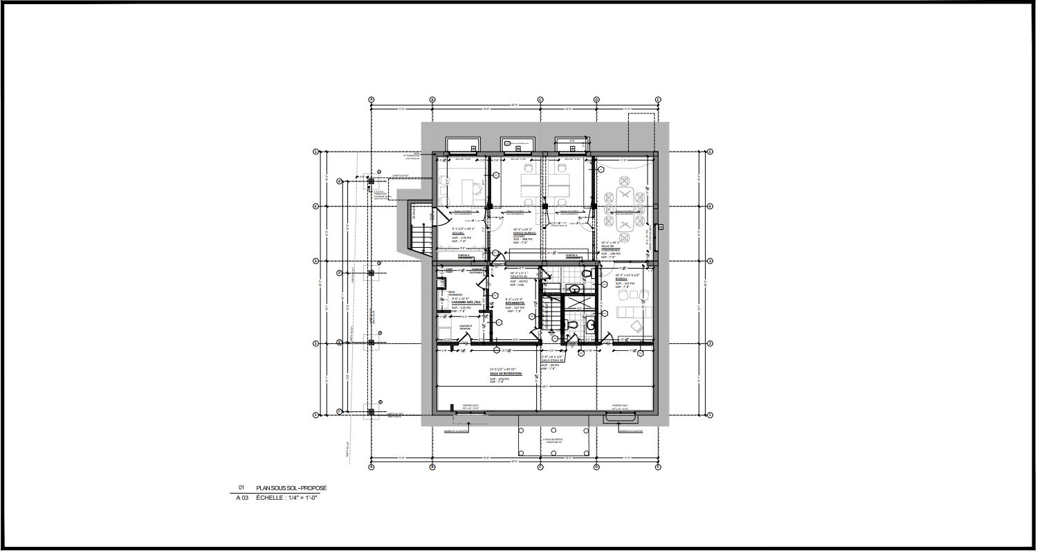
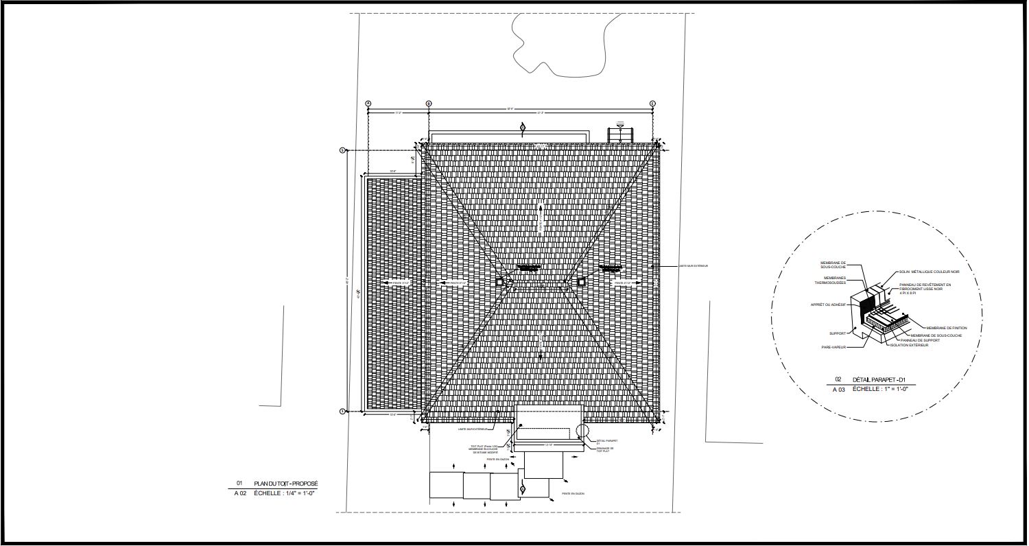
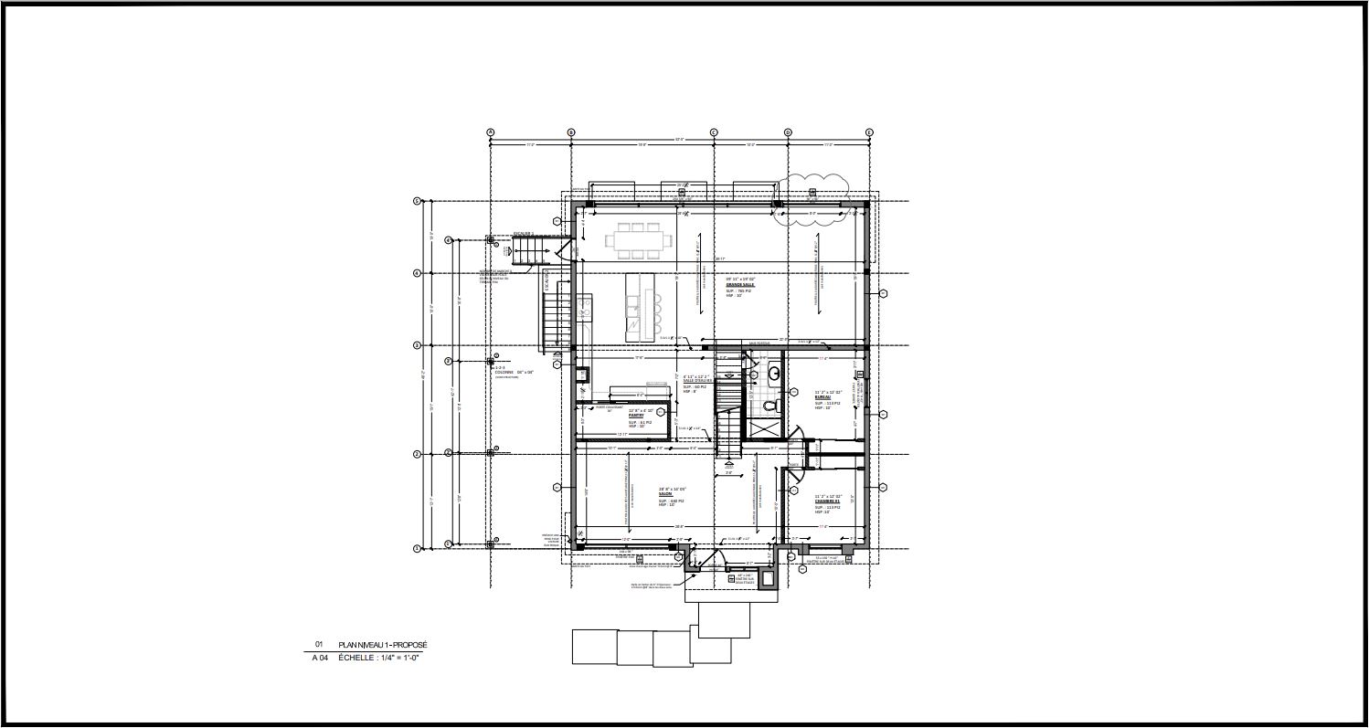
Project information
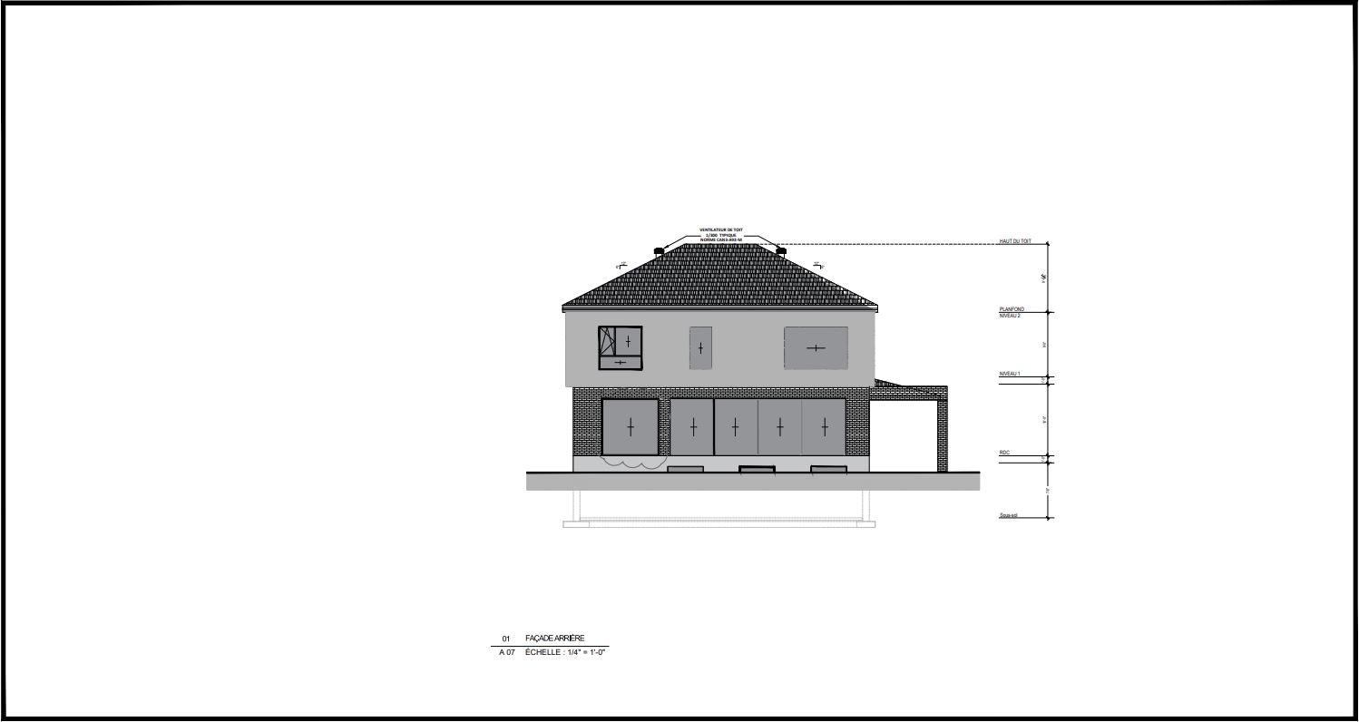
HOUSE DESIGN (RUE GELEN) LAVAL