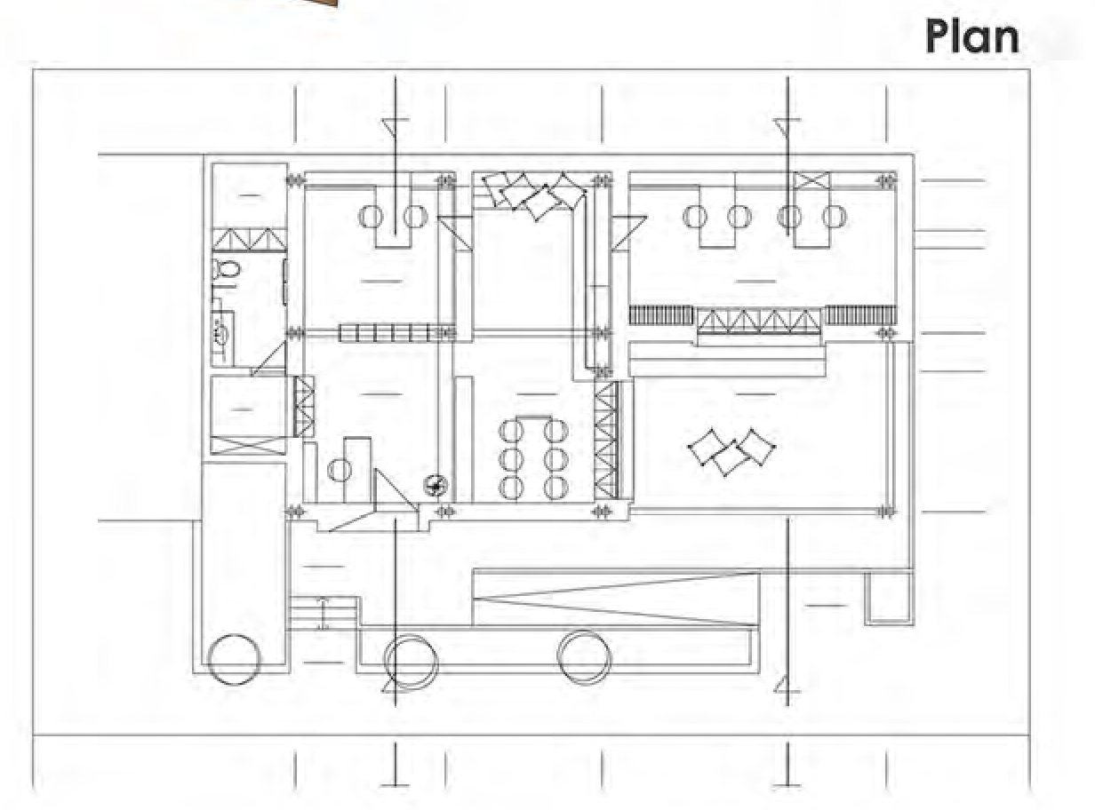
Project information

ADAPTIVE REUSE DESIGN FOR OZEL EGITIM MERKEZI

Restoration of a historical building which functions as a school for special needs students for gaining a well designed indoor and outdoor spaces in the existing historical environment