Home
About
Resume
Projects
Contact
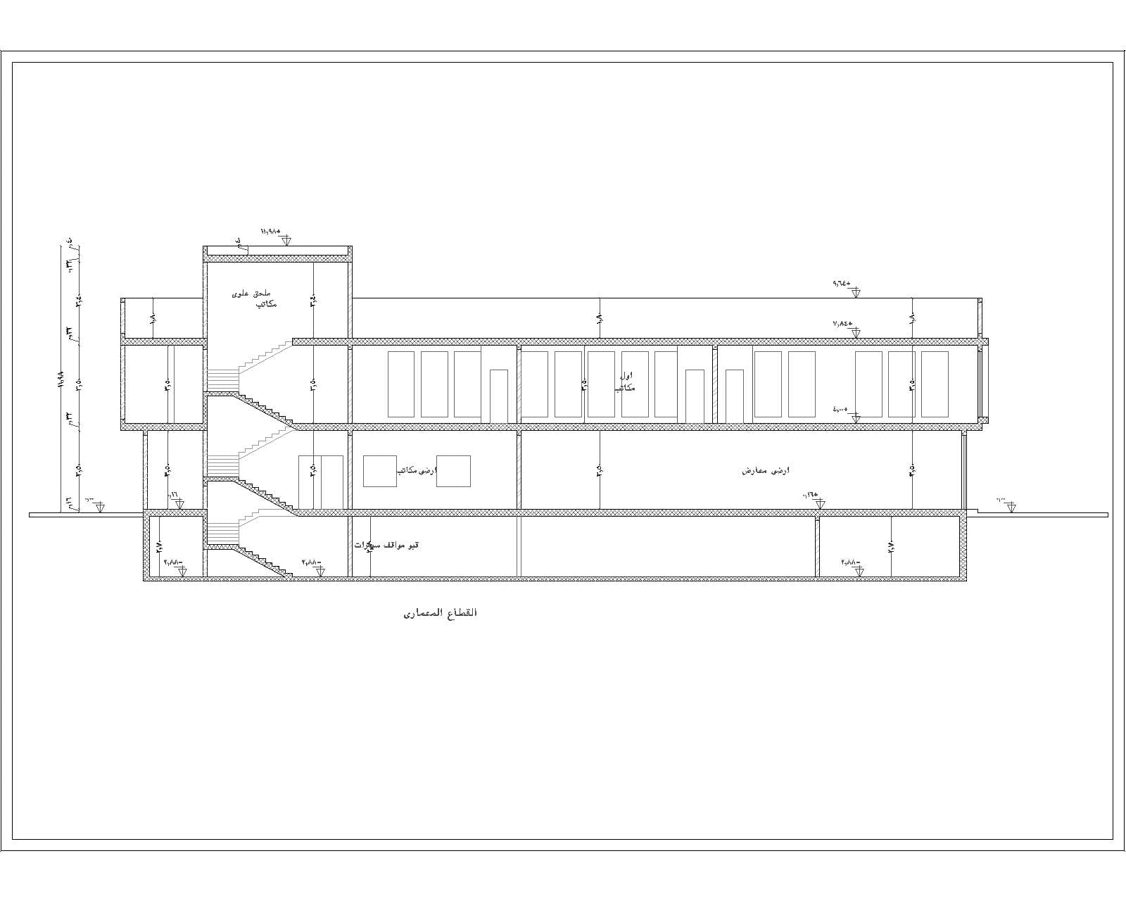
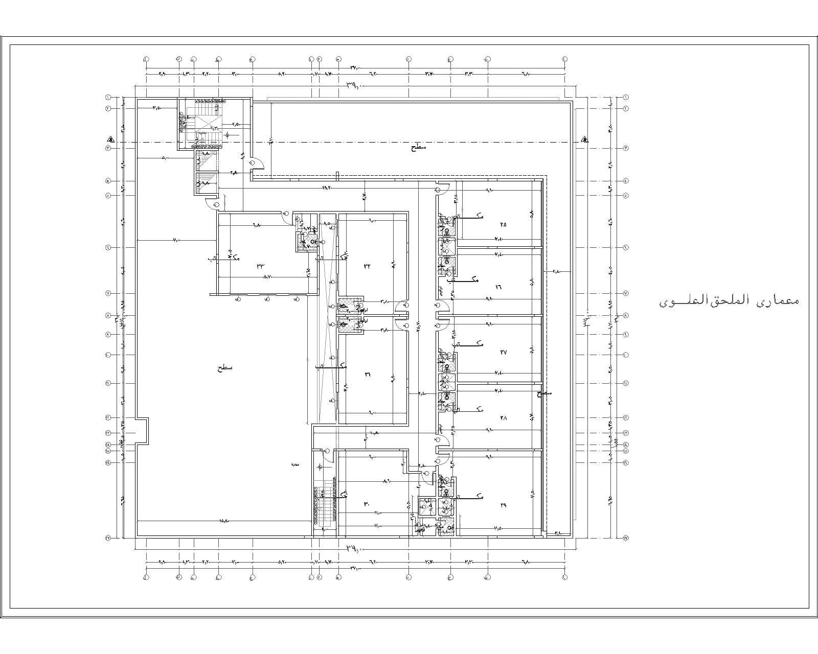
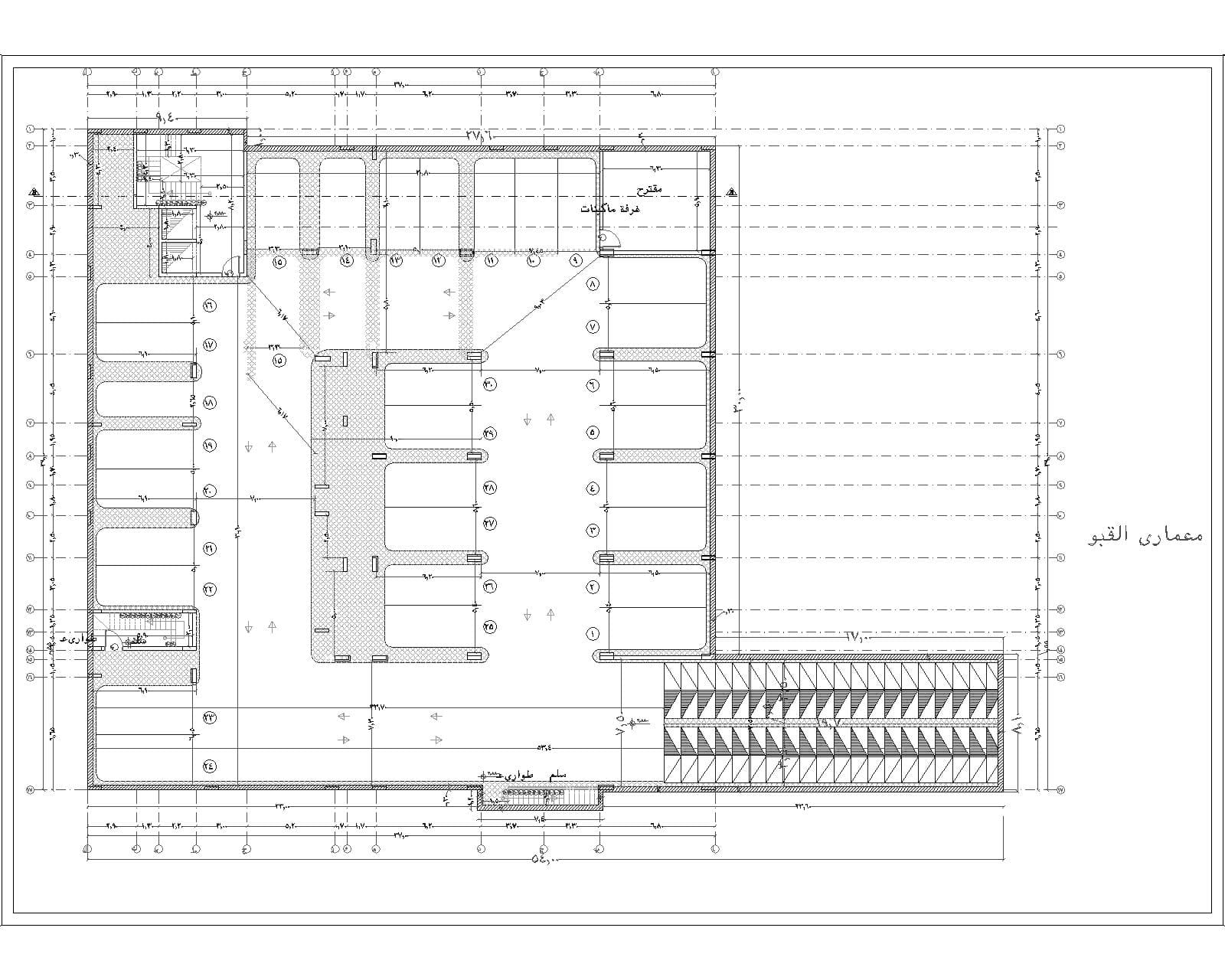
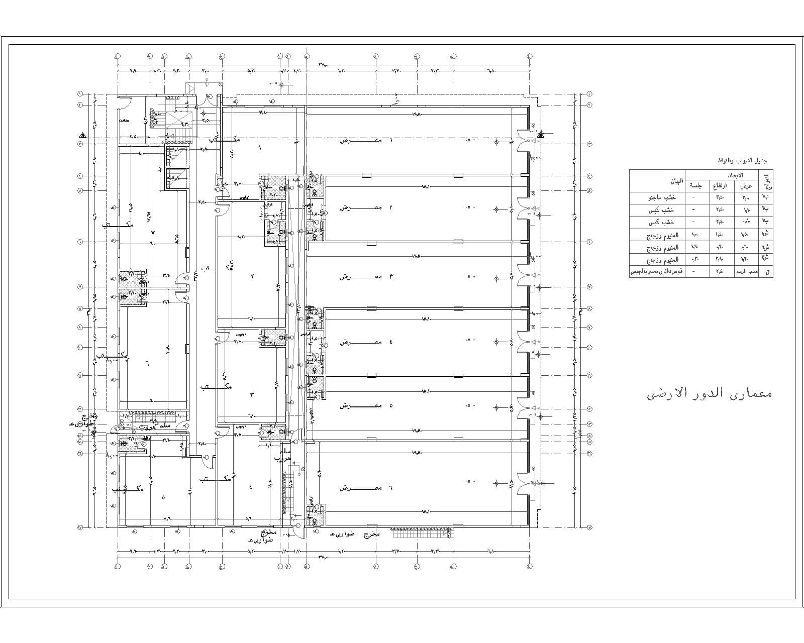
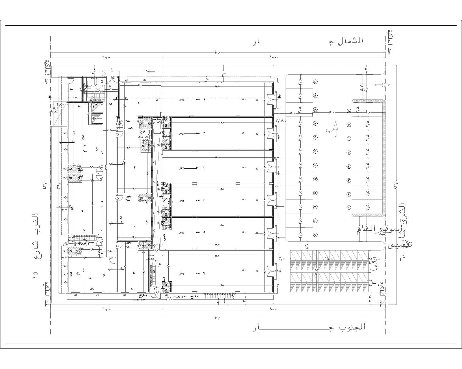
Project information
COMMERCIAL AND SHOPPING CENTER