Project information

SULTAN LODGE

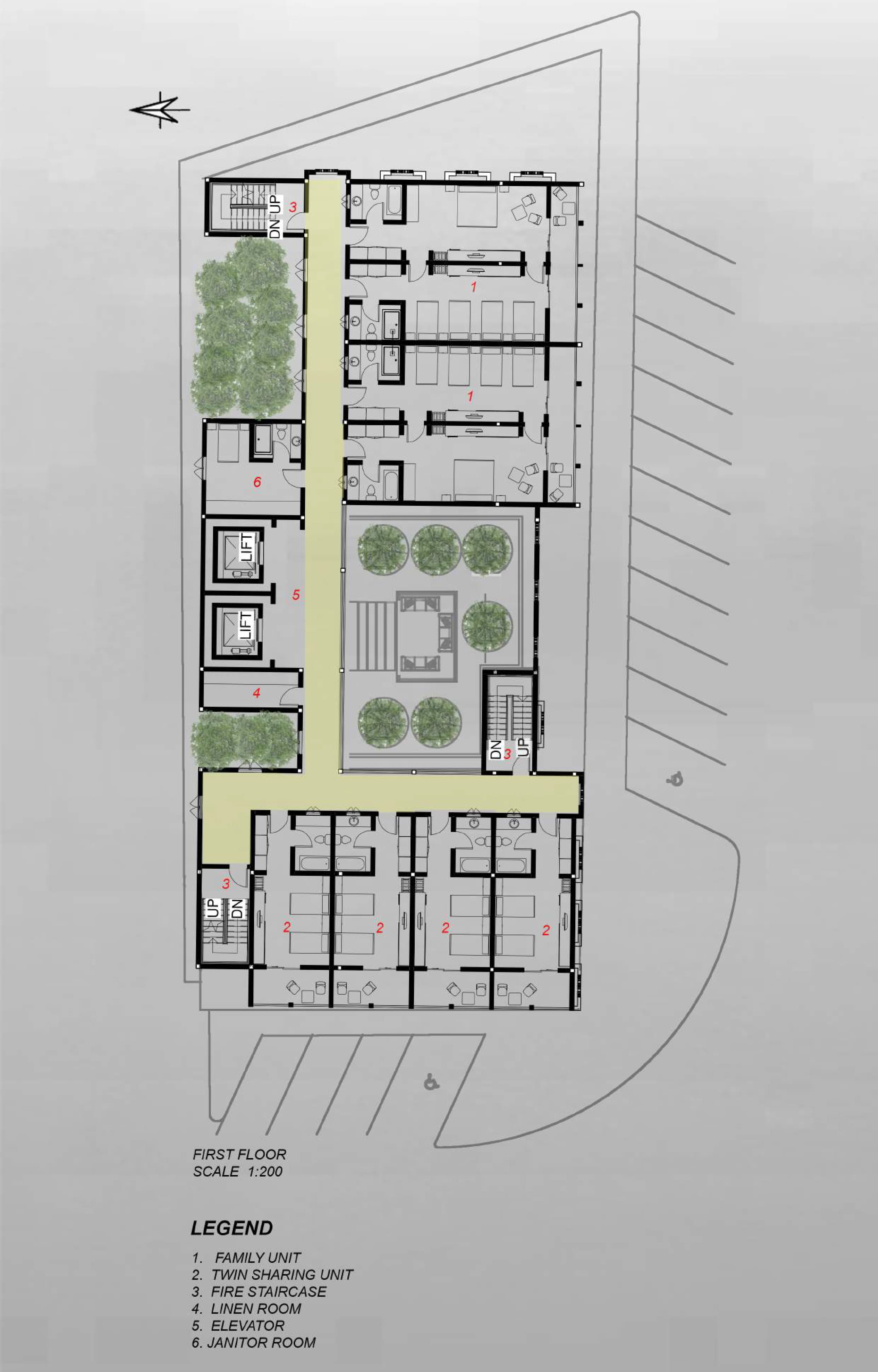
The eco lodge is designed in such a way that it has minimal impact on the environment and also to be as sustainable as possible in their use of resources. Moreover, it aims to improve the welfare of the locals, and also to attracting tourists. This eco lodge is an ideal place for tourists in Damascus suburb as it provides a different experience by adding a cultural and historical presence in a unique way, merging of traditional and contemporary furniture, finishes and materials that equate to timeless classic design. The lodge is designed in a simple but unique way and features either linear or round profiles. Bricks and concrete are the common materials used in the area where plaster and concrete are not used to show more rustic effect on the environment. The architectural language of this building is associated with the neoclassical Style with the simplicity of geometric shapes, as the greenery and plants of this ecological resort compensate for the insufficient amount of greenery in the region. It provides an escape from an urban forest to a place surrounded by rooms and spaces in the eco-lodge . The eco resort reflects the cultural and historical aspects of the city which consists of 8 twin rooms and 4 family rooms (6 people). This eco resort also has a lobby, a restaurant, and 16 parking lots including 2 handicap parking. It is designed in such a way that it celebrates the beauty and tranquility of the environment around it . This eco lodge is an ideal place for tourists in Damascus suburb for a different experience with a historical and cultural presence.